當前位置: 主頁 > 裝修案例 > 太原小戶型裝修公司-太原的裝修公司哪個好-太原怎樣選擇裝修公司
案例風格
后現代風格
案例戶型
三居室
設計師
高蕓
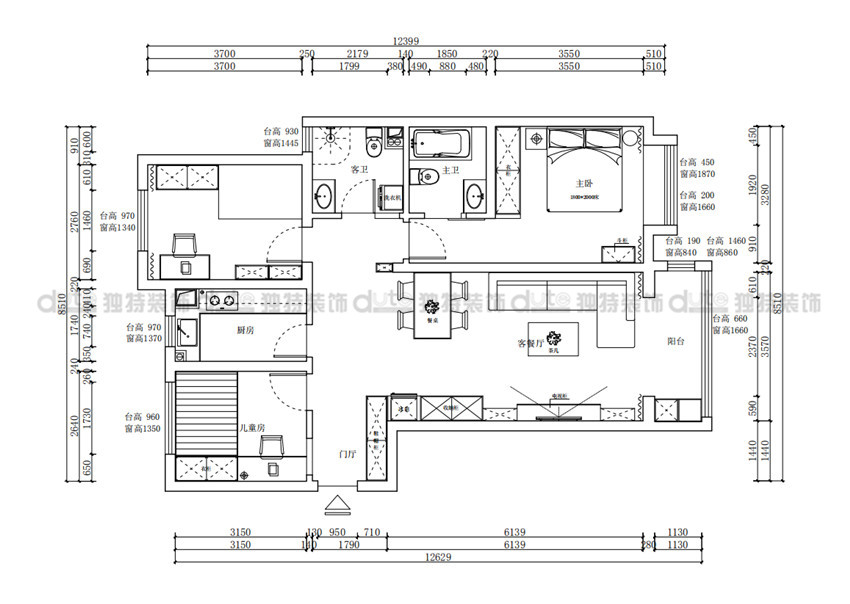
房屋面積
122m2
案例設計師:高蕓
小區:中車國際
造價:8.3W
面積:122平米
區域:全屋
幾室幾廳:三室兩廳
裝修風格:后現代
案例說明:本案以簡而不繁的手法去解讀現代人文的后現代情節,在古典與現代的邊緣游走 后現代---文脈,經典而恒久的魅影







文章說明:裝修效果圖是本公司為業主提供的原創設計展示,如需轉載請提前聯系本公司。知識類內容為小編手寫原創,圖片因需要與內容有更高的匹配度因此部分來源于網絡,如有侵權請聯系本公司,小編第一時間整改刪除。
免費申請戶型規劃
專屬設計師免費1對1全程服務
你家預算
108080元
免費電話報價
13453430516