當前位置: 主頁 > 裝修案例 > 太原十大品牌裝修公司-太原裝修公司前十-太原如何選定裝修公司
案例風格
中式風格
案例戶型
四居室
設計師
高蕓
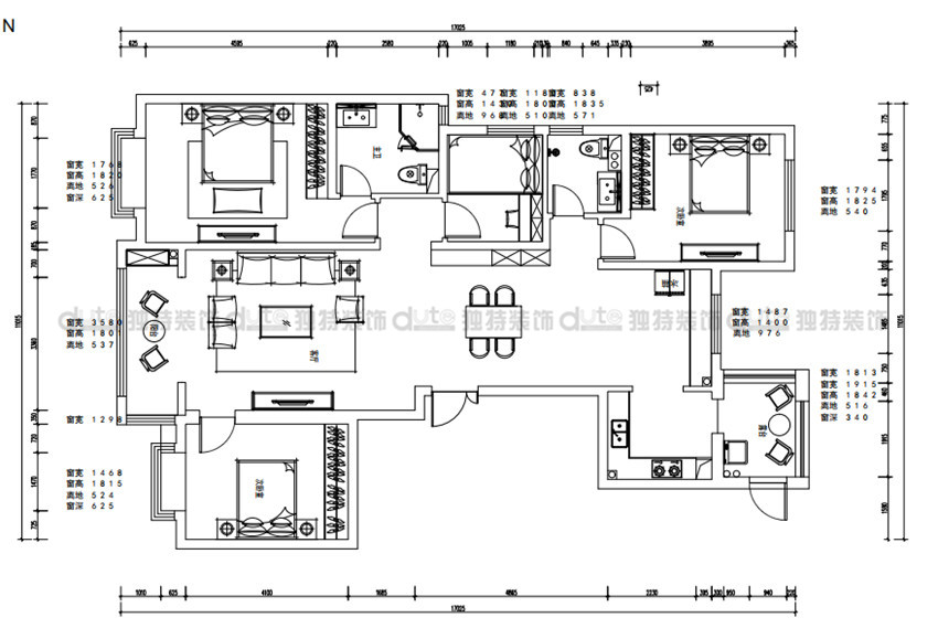
房屋面積
168m2
案例設計師:高蕓
小區:怡佳天一城
造價:15.6W
面積:168平米
區域:全屋
幾室幾廳:四室兩廳
裝修風格:新中式
案例說明:中式風格與現代元素相結合,色調一致搭配。簡單,清爽,干凈,同時空間看上去特別通透。重視室內使用功能。強調室內布置應按功能區分的原則進行,家具布置與空間密切配合。這樣不僅使室內布置清爽有序,富有時代感和整體美,更體現了現代派所追求的“少就是多”的簡約化設計。








文章說明:裝修效果圖是本公司為業主提供的原創設計展示,如需轉載請提前聯系本公司。知識類內容為小編手寫原創,圖片因需要與內容有更高的匹配度因此部分來源于網絡,如有侵權請聯系本公司,小編第一時間整改刪除。
免費申請戶型規劃
專屬設計師免費1對1全程服務
你家預算
108080元
免費電話報價
13453430516