當前位置: 主頁 > 裝修案例 > 太原哪些裝修公司-太原裝修公司報價表-太原哪個裝修公司比較好
案例風格
現代簡約
案例戶型
其他
設計師
高蕓
房屋面積
68m2
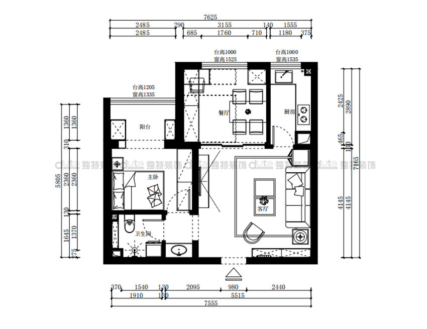
案例設計師:高蕓
小區:東旭世紀城
造價:5.1W
面積:68.7m2
區域:全屋
幾室幾廳:一室一廳
裝修風格:現代簡約
案例說明:簡約. 家居生活以恬靜安逸為主題,其目的在于提供一個放松身心的場所在地,為主人制造一個舒適環境,彰顯時尚的氣質.讓居住者得到高貴雅致的家居體驗.







文章說明:裝修效果圖是本公司為業主提供的原創設計展示,如需轉載請提前聯系本公司。知識類內容為小編手寫原創,圖片因需要與內容有更高的匹配度因此部分來源于網絡,如有侵權請聯系本公司,小編第一時間整改刪除。
免費申請戶型規劃
專屬設計師免費1對1全程服務
你家預算
108080元
免費電話報價
13453430516